La Casa de la Cascada, una maravilla que combina arquitectura y respeto por la naturaleza
Fue construída en al segunda mitad de la década del '30 en la Reserva Natural de Bear Run, Pensilvania, y sigue maravillado.
Construida en la Reserva Natural de Bear Run, Pensilvania, la Casa de la Cascada se encuentra a 1298 metros sobre el nivel del mar a cargo del arquitecto Frank Lloyd Wright. En el mismo terreno hay un río que corre en el lugar y cae abruptamente 30 metros y su estilo define la relación entre hombre, arquitectura y naturaleza.
Esta maravilla de la arquitectura fue pensada como casa de fin de semana para la familia Kaufmann (padre, madre e hijo), quienes habían pensado en una construcción frente a la cascada, para poder apreciarla.
Sin embargo, Wright integró el diseño con la cascada, posándola encima para sea parte de la vida de los Kaufmann.
Wright era admirador de la arquitectura japonesa, lo que fue clave para el diseño de la casa, al igual que en sus demás obras. De este modo, buscó crear armonía entre el hombre y la naturaleza, y la integración de la casa con la cascada es un claro ejemplo, ya que el sonido de la caída se escucha en toda la construcción.
El diseño se resolvió alrededor de la chimenea por considerarla el lugar de reunión de la familia. Además, los cimientos está hecho con rocas del lugar, y algunas sobrepasan el ancho forjado de la primera planta asomándose junto a la chimenea, lo que trae la cascada al interior.
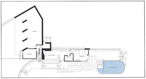
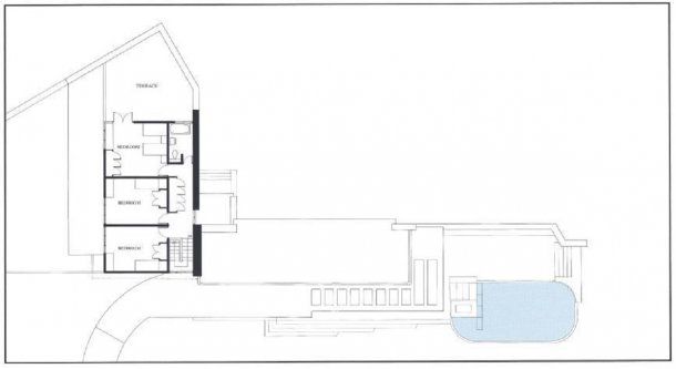
Se trata de un edificio de dos partes. La casa principal, que se construyó entre 1936 y 1938, y el cuarto de huéspedes, que data de 1939.
La construcción original tiene habitaciones sencillas, con un estar abierto y cocina compacta en la planta baja y tres dormitorios pequeños en el segundo piso. En el tercer piso estaban el estudio y el dormitorio del hijo de los Kaufmann.
Todos las partes de la casa se relacionan la naturaleza, y el estar incluso tiene escalones que conducen directamente al agua. Las circulaciones dentro de la casa son oscuras, los techos bajos y los pasillos estrechos, para generar la sensación de encierro en comparación con lo abierto a medida que se acercan hacia el exterior.
Temas
Las Más Leídas













Dejá tu comentario